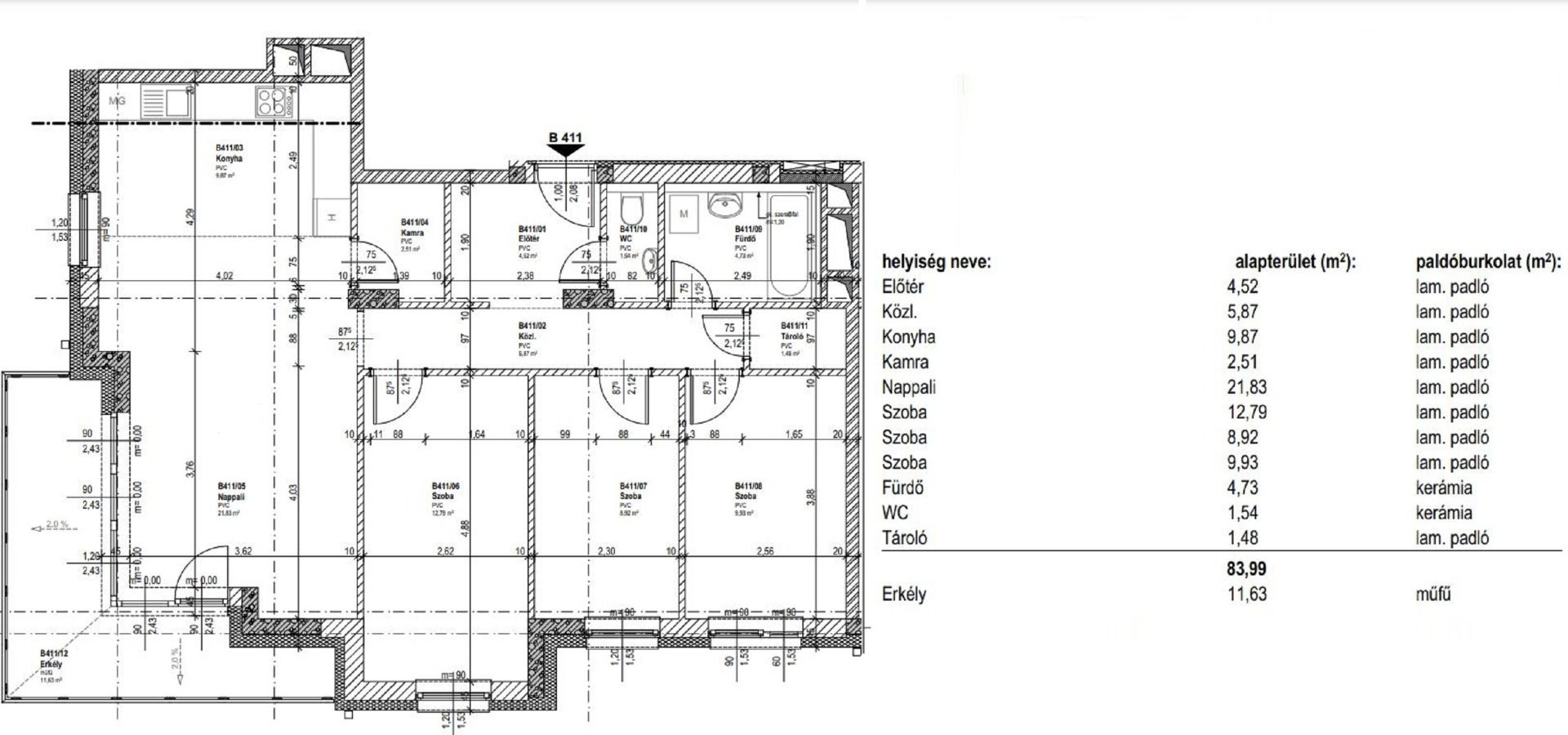
Angyalföldön, 2020-ban épült, 84 m2-es lakás kiadó

10665 Nyomtatás Ajánlás Facebook

Kiadó, nappali + 3 hálószobás lakás, igény szerint berendezve vagy bútor nélkül is, gépesítve, kisállat is hozható.

A képeken látható lakás kiadó, de többet is tudunk mutatni.
A lakások méretben, berendezésben, alaprajzban egymástól eltérhetnek, méretük szerint a közös költség és a bérleti díj összege is változik. Erkélyes és erkély nélkülit is találhat a kínálatunkban.
Nappali + 1-2-3 hálós lakások is vannak még a készlet erejéig
Jöjjön el és tekintse meg a kínálatot, biztosan találunk megfelelőt az Ön számára.

A lakások 2020-ban kerültek átadásra.
Az ingatlanok klimatizáltak, teljesen gépesítettek (beépített sütő, főzőlap, hűtő, szagelszívó, mosogatógép, mosógép, 50’ TV).
A lakás a képeken látható prémium bútorokkal és gépekkel van esztétikusan berendezve.

Szükség esetén teremgarázshely is bérelhető az épületben, 38 000 Ft/hó.
Internet-kábeltévé szolgáltató a Vodafone.
Dohányzás az ingatlanokban nem megengedett és amint említettem, kisállat hozható.

Minimum egy éves szerződéssel, beköltözéskor első havi bérleti díj + kaució megfizetésével illetve közjegyzőnél tett kiköltözési nyilatkozattal vehető bérbe.
Bérleti díjakról, kaucióról, közös költség pontos összegéről a kiválasztott lakás függvényében adunk tájékoztatást.

A környékről:
A lakópark a belvárostól mindössze 10 percre, Angyalföld dinamikusan fejlődő részén található. Akar autóval, akár tömegközlekedéssel, néhány perc alatt elérhető a városközpontból: az M3-as metró Árpád hídi megállója 950, a Forgách utcai megállója mindössze 850 méterre található. Az 1-es és a 14-es villamosok megállója 650 méterre, a 115-ös, a 120-as és a 32-es buszok megállói néhány száz méterre helyezkednek el. A lakóparktól gyalogos távolságra megtalálható minden, amire szükségünk lehet: éttermek, bevásárlóközpont, sportlétesítmények, iskolák, óvodák és gyógyszertár.

Amennyiben hasonló ingatlant keres, ne döntsön, mielőtt még ezt nem látta.
Várom hívását. Ingatlannal kapcsolatos kérdésekben bármikor, hangsúlyozom, bármikor hívhat.
.
.
De tényleg :-)

Apartment for rent, living room + 3 bedroom, furnished or unfurnished, equipped, pets allowed.

The apartment in the pictures is for rent, but we can show you more.
The apartments may vary in size, furnishings, floor plan, common charges and rent will vary according to size. You can find apartments with and without balconies.
Living room + 1-2-3 bedroom apartments are also available while stocks last
Come and have a look at what we have to offer, we are sure to find the right one for you.

The apartments were delivered in 2020.
The properties are air-conditioned, fully equipped (built-in oven, hob, fridge, extractor hood, dishwasher, washing machine, 50' TV).
The apartment is aesthetically furnished with premium furniture and appliances as shown in the pictures.

If required, a garage can be rented in the building for 38 000 HUF/month.
Internet cable TV provider is Vodafone.
Smoking is not allowed on the premises and as mentioned above, pets are allowed.

Minimum one year lease, first month's rent + deposit payable on move-in or with a notarised declaration of move-out.
Information on rent, deposit and the exact amount of common charges will be given depending on the apartment chosen.

About the area:
The residential complex is located just 10 minutes from the city centre, in a dynamically developing area of Angyalföld. It is only a few minutes from the city centre by car or by public transport: the M3 metro line (metro line M3) stops at 950 metres from the Árpád Bridge stop and 850 metres from the Forgách Street stop. Trams 1 and 14 stop 650 metres away, while buses 115, 120 and 32 stop a few hundred metres away. Within walking distance from the complex you will find everything you need: restaurants, shopping centre, sports facilities, schools, kindergartens and pharmacy.

If you are looking for a similar property, don't decide before you have seen it.
I look forward to your call. For any questions about real estate, call anytime, I stress anytime.
.
.
Really :-)

Fekete Zoltán
PRÉMIUM

Fekete Zoltán

10 éve a Városi Ingatlaniroda tagja
Régióigazgató
Budapest
+36 (70) 947 6547
Észrevétel a hirdetéssel kapcsolatban
Egy ingatlanos naplója