Bejáratott vendéglátóegység, felszereléssel együtt eladó!

17830 Nyomtatás Ajánlás Facebook

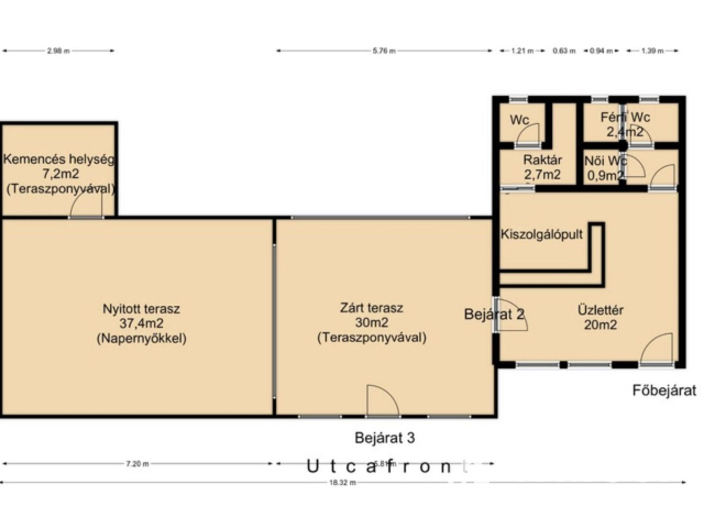
Nagykanizsán nagy múlttal és egyben nagy ügyfélkörrel rendelkező jelenleg is üzemelő, vendéglátóegység vált eladóvá. Az ingatlan nagy forgalommal rendelkező utca közvetlen szomszédságában található, így a vendégek vagy esetleg más célra használni kívánt üzlethelység kiváló marketing lehetőségeket rejt magában. A jelenlegi egység a teljes felszereléssel, vagyis mindazzal ami a vendéglátó tevékenységes szükséges, együtt eladó. (Beleértve a szükséges szakhatósági engedélyeket is) Az épület teljes közművel felszeret. A tulajdonosok 2020-ban teljes körűen felújították az ingatlant.
Ezen munkálatok során amik elkészültek:
-új villamoshálózat kiépítése, (jelenleg 1x32A de a 3 fázis előkészítése is megtörtént)
-külső belső szigetelés, színezés, festés,
-új nyílászárok beépítése,
-a teljes egységben a hideg és melegburkolatok cseréje
-teraszok modernizálása, (teraszponyva felszerelése)
-pizzakemence beüzemelése, lezárása teraszponyvával.
Az ingatlanhoz tartozik még egy különálló teljes közművel felszerelt kis épület ami szintén kiválóan alkalmas lehet bármilyen üzleti tevékenységre. (jelenleg raktárként van hasznosítva)
Ha Ön szeretne egy olyan vállalkozást amely kiváló befektetési lehetőség is egyben, vagy esetleg a család közös munkájának köszönhetően jó megélhetést tud biztosítani, akkor ez az ingatlan kiváló választás lehet.
Iroda: Nagykanizsa Platán sor 7

Hohl József
PRÉMIUM

Hohl József

10 éve a Városi Ingatlaniroda tagja
Régióigazgató
Nagykanizsa
+36 (30) 608 6857
Észrevétel a hirdetéssel kapcsolatban
Egy ingatlanos naplója