Kedvező árú új lakások Székesfehérváron

4827 Nyomtatás Ajánlás Facebook

Amíg a készlet tart, addig még a tavalyi áron hozzájuthat a Vadrózsa lakópark utolsó 3 lakásához!

Ne hagyja ki ezt a lehetőséget! Ezen a négyzetméteráron már csak panellakást tud máshol vásárolni.

Kertvárosias, könnyen megközelíthető helyen levő új építésű eladó lakást keres Székesfehérváron? Legyen egy-két szobája erkéllyel vagy terasszal és minimális rezsije? Mindez jóval a székesfehérvári új építésű ingatlanok ára alatt?

Pont ilyen korszerű, minőségi eladó lakásokat ajánlok Önöknek Székesfehérvár egyik csendes lakótelepe mellett, közvetlenül egy természetvédelmi terület mellé épített lakóparkban.

A lakóparkban jelenleg 24 lakás és 16 garázs és 8 gépkocsiparkoló építése zajlik, melyek tervezett átadása 2025 december 31.

A különleges kialakítású lakások nagy része erkéllyel vagy terasszal rendelkezik és van olyan, amelynek közvetlen kapcsolata van a saját garázsához. Egy részük belső galériás kialakítású. Ez utóbbiak 4,8 m-es belmagassággal és azon belül 2,2 m-es galéria belmagassággal rendelkeznek.

Az épület külső falai 12 cm-es grafitos szigeteléssel burkoltak. A lakásokat téglafalak választják el egymástól. A legújabb energetikai előírások szerinti kivitelezés, a 3 rétegű üvegezéssel ellátott nyílászárók és a külső szigetelés, a legmodernebb prémium minőségű hőszivattyús padlófűtéssel és fan-coil hűtéssel, a hőcserélős szellőzőrendszerrel gazdaságos üzemeltetést biztosítanak, minimális költséggel.

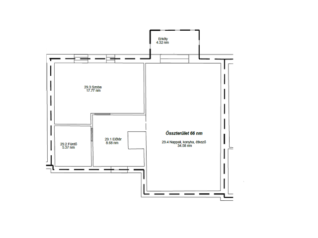
A mellékelt alaprajz tájékoztató jellegű. Bizonyos lakásoknál az észszerűbb kialakítás miatt eltérés lehetséges.

A hirdetésben szereplő lakás:
Az emeleten levő 66 négyzetméteres 11. lakás a következő helyiségekkel kerül kivitelezésre: nappali, szoba, konyha, gardróbszoba, háztartási helyiség, fürdőszoba és egy 5,19 négyzetméteres erkély. Ára: 71 127 000 Ft.

Az ár tartalmazzák továbbá a teraszok, a kerítés építési és a kert parkosítási költségeit is.

Fizetési kondícióktól függően további kedvezmény érhető el a fenti listaárakból.
A lakásokhoz tároló vásárolható, mérettől függően 2,4-7,2 mFt között. A garázsok mérettől függően 10,287 mFt-tól érhetők el. A felszíni kocsibeálló ára 2 mFt+Áfa.

A közelben ipari parkok, bevásárlóközpont, Stadion, helyi és távolsági buszmegálló található. Parkolás telken belül a megvásárolható garázsokban vagy a felszíni parkolókban, illetve az utcán is lehetséges.

A nagy érdeklődésre való tekintettel a lakások gyorsan fogynak. Érdeklődjön, hogy lakások közül melyik elérhető még! Jöjjön, és nézzük meg együtt, amíg lehet választani közülük!

Telefon: +36 70 329 5030 Hívjon akár hétvégén is!

Segítséget nyújtunk hitel ügyintézésben, valamint az adás-vétellel kapcsolatos teljes körű jogi és egyéb ügyek intézésében is.

Wollein Attila
PRÉMIUM

Wollein Attila

5 éve a Városi Ingatlaniroda tagja
Ingatlanértékesítő
Székesfehérvár
+36 (70) 329 5030
Észrevétel a hirdetéssel kapcsolatban
Egy ingatlanos naplója