Minden igényt kielégítő újépítésű családi ház 2

18666 Nyomtatás Ajánlás Facebook

Eladó Újszegeden a lányneves utcákban új építésű önálló családi ház. A ház szerkezetkész állapotban van, 2 hónapos határidővel meg tud történni a kulcsrakész átadás!

Főbb jellemzők:
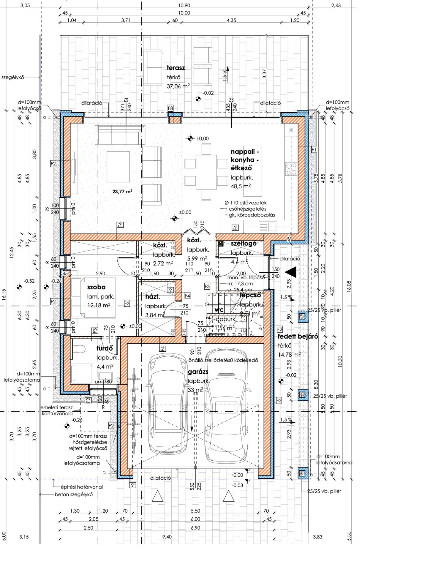
- 753 m2-es önálló telken épülő, szabadon álló belső szintes családi ház
- 30 cm tégla falazat, 15 cm EPS hőszigetelés
- nettó alapterület: 165 m2 + 20,1 m2 fedett bejáró és erkély + 37 m2 terasz
- nappali + 4 szobás elrendezés
- 2 fürdőszoba, 3 wc
- 37 m2-es terasz

Az emelt szintű szerkezetkész állapot a következőket tartalmazza: 
- villanyszerelési vezetékelés, riasztó rendszerrel együtt (gyenge áram), szerelvények nélkül;
- festés - 2 sor glettelés, 1 sor fehér színű falfestés
- gépészeti szerelés hőszivattyúval - padlófűtés, mennyezethűtés, szabályozó NGBS elektronika

Amit a feltüntetett ár nem tartalmaz: szerelvények (kád, tuskabin, wc -k,csapok), burkolások, beltéri ajtók és a külső kerti elemek nincsenek ebben az árban (kerítés,kertrendezés, térburkolás)

A kulcsrakész állapot tartalma:
- beltéri ajtók (150.000 Ft-ig)
- burkolást, burkolatokat (8.000 Ft/m2-ig)
- villany szerelvényeket (egyeztetett árig), alap riasztó rendszert
- gépészeti szerelvényeket: kád, tuskabin, wc -k, csapok (egyeztetett árig)
- külső részen: térburkolást a garázsbejáróban, ajtóban, termőföld feltöltést, kerítést

Kulcsrakész ár: 210.000.000 Ft

A tervezett szerkezetkész állapot elkészült, a kulcsrakész befejezést a kivitelező 2 hónapos határidővel vállalja.

További információért és időpont egyeztetéssel kapcsolatban forduljon hozzám bizalommal!

Elérhetőség:
Német Máté
+36-30/ 975-8764
nemet.mate@varos.hu

Német Máté
PRÉMIUM

Német Máté

8 éve a Városi Ingatlaniroda tagja
Karrierigazgató
Szeged
+36 (30) 975 8764
Észrevétel a hirdetéssel kapcsolatban
Egy ingatlanos naplója